- Overview
- Characteristics
- Reviews (0)
Производитель: AlcaPlast
Артикул: A105/1120
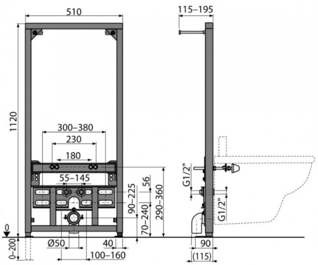
Монтажная рама для биде
С креплениями к стене
Размеры: 50*112*11,5 см
Несущая способность 400 kg
Для подвесного биде с интервалом крепления 180 мм или 230 мм
Для подключения смесителя
Для монтажа к несущей стене или в гипсокартонную конструкцию
Выдвижные ножки с регулировкой в диапазоне 0–200 мм
Обрамление двусоставное – можно установить дополнительно
Материал: металл обработанный порошковой краской
Содержание комплекта:
Самонесущая рама
Монтажный комплект: винт Ø8×60 – 4 шт., дюбель Ø12 – 4 шт.
Монтажный комплект для крепления биде: шпилька М12 – 2 шт., шайба – 4 шт., колпачок – 2 шт., гайка – 2 шт., гофрированный рукав – 2 шт.
Резьбовое соединение для подключения воды: G1/2"–G1/2"
Стоковое колено HT50 с прокладкой
